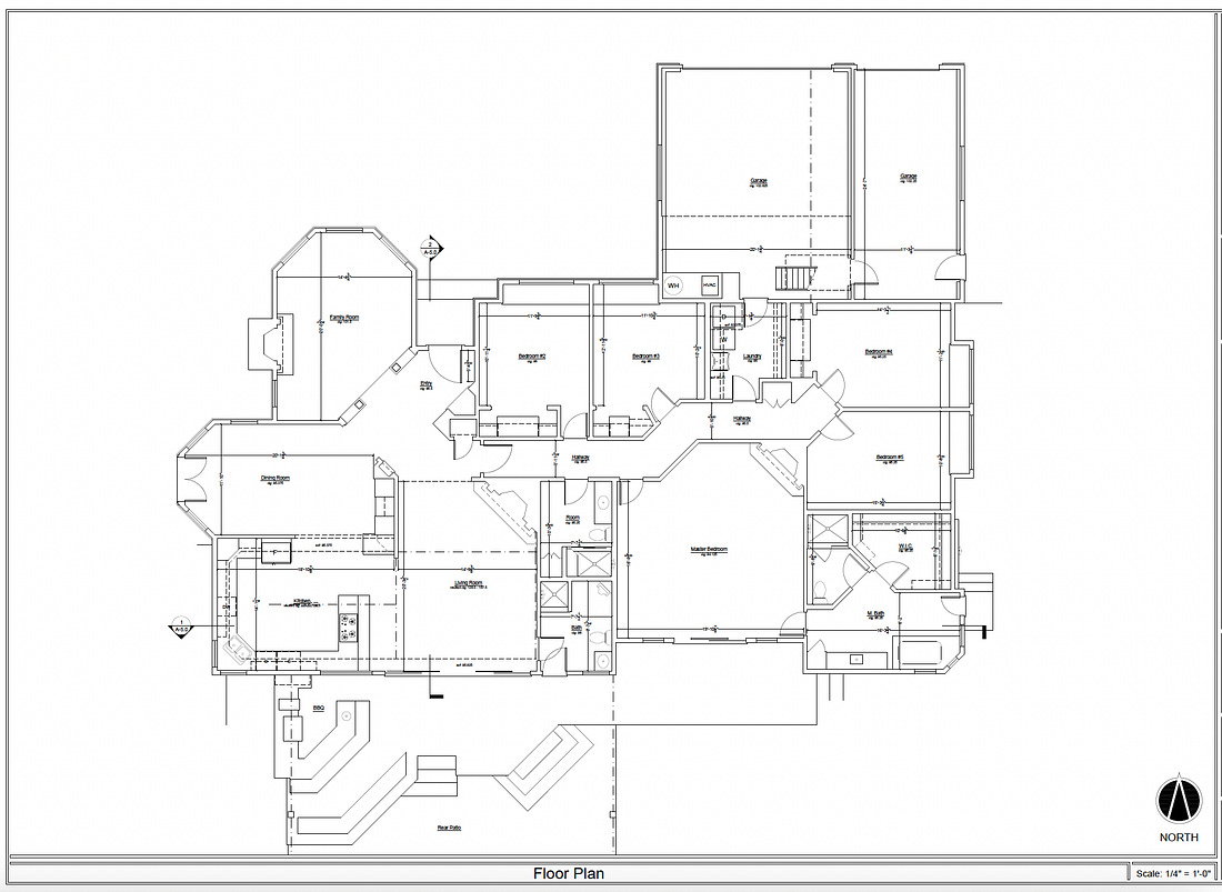
A house can be laid out in countless ways—we had to choose onePlus, a plaid sofa and curio cabinet for your inner granddad.We’re shifting gears and starting the rebuild. First up: layouts. The layout of a home is the bone structure of the house: the feeling of the house, the surface details, the light all rely upon decisions made for this structure. I’m also sharing two classics in my summer cooking repertoire, and a new furniture collection that has autumnal energy. It was this time, two summers ago, that we started working in earnest with the architecture team at Bestor. We had a house and a design vibe and now they needed to be finessed into an actual layout. We’d decided to use the footprint of the existing house and simply (lol) rearrange its interior. If you included the 3-car garage—part of which could be turned into an ADU with a loft—we had 4,000 square-feet to work with, which felt like a football field to us pickle-ball-court apartment dwellers. Yet we needed some room to serve our next phase of life, in which we envisioned hosting in-laws and grandchildren for the holidays, entertaining house guests, throwing barbecues, tackling new chapters in our careers, and stretching out for regular yoga sessions (or so we told ourselves). They say to dream big in life, and my biggest dream consisted of having both a laundry room and a pantry. Space for yoga mats would be great and all, but it wasn’t coming before a laundry room with a folding table; we fold clothing on our bed in Brooklyn, which always makes me feel like a college student. In addition to our room wishlist, I created this storage and features document, a first draft of our more practical needs (like what would need to be stored in a linen closet or the pantry, design details we’d like in our studies, where a printer might live, etc.). Here’s the layout we started with: The previous owners had prioritized the number of bedrooms (5), cars (3), fireplaces (3 in the house, 1 on the covered patio). For us, there was too much garage space and too many small bedrooms. Bestor Architecture began sending over options, and it quickly started to feel like the interior of the house was a kaleidoscope—each time you shook it, you’d get a new pattern and new possibilities. I loved this process and began to more deeply appreciate how architects think. Get ready to nerd out on floor plans. Here’s the full progression:... Subscribe to Homeward to unlock the rest.Become a paying subscriber of Homeward to get access to this post and other subscriber-only content. A subscription gets you:
|
Friday, July 18, 2025
A house can be laid out in countless ways—we had to choose one
Subscribe to:
Comments (Atom)

